Bölgenin 35 yıllık inşaat firması olan BİNYIL YAPI A.Ş.' Özge apartman projesinde inşa ettiği dokuz en güncel tecrübesiyle;
Ocak, Fırın, Davlumbaz, Klima, Göl Kapı, Vestiyer, E.banyo, Balkon, Panjur, kapalı ve açık otopark mevcuttur.
Her daire için 2 araçlık otopark yeri mevcut ve garaj çıkışları oldukça rahat kullanışlıdır.
Konum olarak Metro istasyonuna göre 6 dk, Minibüs yolu 8 dk, E-5 karayoluna araç ile 5 dk'dır. Atatürk ve İnönü caddesi arasında sakin bir sokakta yer alan projemizde yaşam eylül ayı itibarıyla başladı.
İnşaat firmasından satılıktır, yazılı satış fiyatı hariç, her hangi bir aracı komisyon yada satış satış ücreti yoktur.
Bölgenin 35 yıllık inşaat firması olan BİNYIL YAPI A.Ş.' dokuz en güncel tecrübeleriyle inşa ettiği Kaçmaz apartmanı projesinde;
Ocak, Fırın, Davlumbaz, Klima, Kombi, Göl Kapı, Vestiyer, E.banyo, Balkon, Kiler, bulunmaktadır. Ayrıca bodruma 174 adet olmak üzere 6 metre uzunluğunda kazık çakılmıştır.
Projemizin tüm hareketli ve sabit mobilyaları GANTE MUTFAK tarafından projelendirilmektedir.
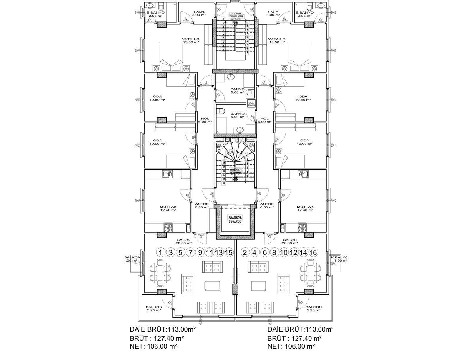
Projemizde sadece 3+1 olarak plan çalışılmış olup 106 adet net duvarlar hariç halı serilebilir alan bulunmaktadır.





